106 SE Crosspoint Drive, Port St Lucie, FL 34983
- 3 beds |
- 2 baths |
- 1,336 sqft
Single-Family Home
Built in 2003
10,019sqft lot
2 car garage
$275/sqft
Listed 2 days ago
Property Description
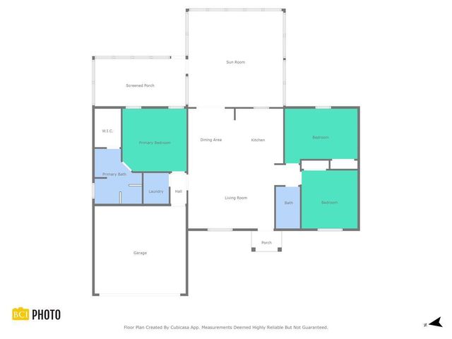
Extra several hundred sq ft not included in square footage with enclosed and air conditioned Florida Room - perfect for home office or extra living area! This well maintained 3 bedroom, 2 bathroom CBS home located on a quiet street near Crosstown parkway offers the perfect balance of serenity and convenience. This home features a new roof, low maintenance tile and vinyl flooring throughout as well as a desirable split floorplan offering privacy and functionality. Oftentimes, with a Florida Room, you lose the porch - not here! Exiting the Florida Room, you are greeted by a generous screened in porch overlooking your lush, fenced in backyard and hot tub! The home backs to a drainage canal for added privacy. This home is conveniently located, immaculately maintained, and loaded with extra
- Listing Status:
- Active
- Date Added:
- November 14, 2025 at 06:00AM
- Listing Office:
- Keller Williams Realty of PSL : (772) 236-5700
- Listing Agent:
- Justin Miret : (773) 562-7508
- MLS ID:
- R11140653

- General: Enclosed PorchFruit TreesPatio
- Pool: None
- Parking: AttachedGarageTwo or More SpacesGarage Door Opener
- Roofing: CompositionShingle
- General: Block1
- HOA Amenities: Other
- Originating MLS: FTL_RMLS
- County: St Lucie
- Zoning: PORT ST LUCIE - SECTION 02-BLK 355 LOT 9 (MAP34/33S)342050508480005
- Utilities: Sewer AvailableWater Available
- Water: Public
- Sewer: Public Sewer
- Source: FTL_RMLS
This listing courtesy of Justin Miret, Keller Williams Realty of PSL
Monthly Payment
- Principal & Interest $
- Property Taxes $
- Home Insurance $
- VA Funding Fee $
Location
Schools Nearby
Bayshore Elementary School
1661 SW Bayshore Blvd, Port Saint Lucie, FL, 34984
Grades PK-5
1.02 miles away
Acceleration Academy
329 SE Port St Lucie Blvd, Port Saint Lucie, FL, 34984
Grades 8-12
1.54 miles away
Acceleration Academy
329 SE Port St Lucie Blvd, Port Saint Lucie, FL, 34984
Grades 8-12
1.54 miles away






