1013 SPOTTED EGRET LOOP, Ruskin, FL 33570
- 3 beds |
- 3 baths |
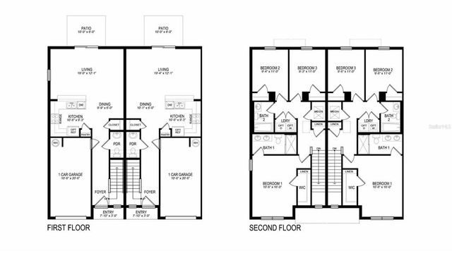
- 1,464 sqft
Town Home
Built in 2025
2,614sqft lot
1 car garage
$191/sqft
Listed 6 days ago
Property Description
Under Construction. The builder is offering buyers up to $25,000 towards closing costs with the use of a preferred lender and title company. Ruskin Reserve is NO CDD community that offers a mix of single-family homes and townhomes designed for modern living. Conveniently located near US-41 and I-75, the community provides easy access to Tampa, Apollo Beach, and Sun City Center. Enjoy nearby outdoor attractions like EG Simmons Regional Park and Little Manatee River State Park, along with a variety of shopping, dining, and entertainment options. Homes in Ruskin Reserve feature D.R. Horton’s signature Smart Home System, durable concrete block construction, and energy-efficient designs, making this community ideal for families and professionals alike. Pictures, photographs, colors, features, and sizes are for illustration purposes only and will vary from the homes as built. Home and community information, including pricing, included features, terms, availability, and amenities, are subject to change and prior sale at any time without notice or obligation. Materials may vary based on availability. D.R. Horton Reserves all Rights.
- Listing Status:
- Active
- Date Added:
- September 28, 2025 at 05:00AM
- Listing Office:
- D R HORTON REALTY OF TAMPA LLC : 813-736-3541
- Listing Agent:
- Jodi Smenda : 813-736-3541
- MLS ID:
- TB8432284

- General: Irrigation System
- Parking: Parking Pad
- Roofing: Shingle
- Windows: BlindsLow-Emissivity Windows
- General: BlockStuccoTwoSlab
- Road/Access: Paved
- HOA Amenities: Other130.0Monthly
- Originating MLS: Stellar MLS
- County: Hillsborough
- Zoning: PD/PDRUSKIN RESERVE SOUTH LOT 121U 08 32 19 D79 000000 00121.0
- Utilities: PublicUnderground Utilities
- Water: Public
- Sewer: Public Sewer
- Source: Stellar MLS
This listing courtesy of Jodi Smenda, D R HORTON REALTY OF TAMPA LLC
Monthly Payment
- Principal & Interest $
- Property Taxes $
- Home Insurance $
- VA Funding Fee $
Location
Schools Nearby
Thompson Elementary School
2020 E Shell Point Rd, Ruskin, FL, 33570
Grades KG-5
2.21 miles away
Slam Academy at Apollo Beach
5150 N US Highway 41, Apollo Beach, FL, 33572
Grades KG-12
1.08 miles away
Slam Academy at Apollo Beach
5150 N US Highway 41, Apollo Beach, FL, 33572
Grades KG-12
1.08 miles away